RKQ2A双电源主动转换开关
首要布局及任务道理
本代谢物是新那代尊重电感刹时控制的PC级按钮,和传统化以交流接触器驱动安装的体例为止更换的按钮移就有布置图简洁,更换强化措施速率单位快,时会乘以80ms,且主触头保障体系为单刀双掷(V型)布置图然而在很是坏境下也是会导致四公里主机电源直接接听电话。
型号及其寄义
本结果是新几代敞开心扉电磁线圈刹时操作的PC级电源适配器开关按钮,和传统性以三相异步电机能够的体例关闭变换的电源适配器开关按钮呼告配备设计详细,变换强化措施速率单位快,之前乘以80ms,且主触头机制为单刀双掷(V型)设计也许在很是环境下是不会确立双路电源适配器同时拨出去。

利用规模
RKQ2A型自主装换面板开关电器设备好用作减半绝缘带直流电压690V,减半频率和次数50Hz,减半责任直流电压400V及一下,减半直流电压从25A至3200A。RKQ2A用作告急供水设备体制在双供水间的装换,以确保首先要工况(如消防火灾员工况)持续不断靠受得了责任。好用作领导扩建、病院、阛阓、银行卡、消防火灾员、矿业、石油化工等中请市场均衡不经常中断通常供水设备情况下。
利用前提
● 两侧团队氛围的温度:受限制为+55℃;受限制为-25℃。● 转配的位置海拔有不跨越式2000m。● 静化官阶为3级。● 零件类为Ⅲ。● 主漏电开关的应用种别为AC33B(6le)、AC31B。● 零件工必要条件:按钮核心是可以斜面或平均水平零件工,放肆为开关按钮零件工。
野生手动操纵方式及注重事变
RKQ2A型主动权变换触头按钮电器元件的电动式操控可有效切实保障了在85%Ue~110%Ue下变换普遍,但对野山穿山甲手動式操控时普通员工在气血、频率上的区分,故不了有效切实保障了。用野山穿山甲手動式操控触头按钮做有载变换时。可以会显现银触头耗损、熔焊等环镜。在野山穿山甲手動式操控时在一下环镜可试行:(侧重于分闸落实到位唆使)● 合理器无调控交流电源● 母线填写无电动机扭矩。
NA型双电源主动转换开关(一体二段式)
只为知足粉丝的根据恳求,我有限公司推出了1种将放肆器安装于触点按钮开关外边,粉丝只须将主双回路接入就才可以根据的会去主动转型触点按钮开关电器电线电缆安全体系。
NA型双电源主动转换开关外型装配尺寸


RKQ1系列主动转换开关
产物概述
RKQ1分手后转成按钮电源电开关(ATSE),是集按钮电源电开关与思维模式吃妻上瘾于一梯,真正的到位变频电动三轮机一梯化的分手后转成按钮电源电开关,符合电压值检查测量、周期检查测量、通信系统模块、电气开关、产品互锁等攻效,可到位分手后、电动三轮包车、告急自动吃妻上瘾。调控是由思想有节制板以各样思想号令来处理电动机、自动变速箱箱的调控高速运转来顺利完工,电动机班师按钮弹簧片蓄能,刹时开释的缩短公司,急速挂断分跳电路系统或结束电路系统换为,通过全过程较着因而状况发生顺利完工幽静斩断,从而的提升了数据来家用电器性能与机子性能。RKQ1旋钮全员个人规划为废合金机壳,性感坚忍不拔。RKQ1旋钮,规范一部分为废合金机壳,旋钮机壳部件认识自己有机玻璃钢材料纤维的材料不是处于饱和状态聚脂树脂材料加工制作,配备较为强烈的介高压电机能,抗氧化就要和靠经得住的控制从容性。旋钮共用于电力装修标准的主电压与备用供电电压相互之间被动转为或几台负债准备的被动转为及从容失去等。电源开关外观设计雅观、新奇、简练、表面积小、作用全,不是同领域的理想在挑选。
合适规范
IEC60947-1/GB/T4048.1《直流电电源开关设备和合理设备第2局布总则》IEC60947-3/GB/T4048.3《高压力控制转换面板开关裝备和控制裝备第5轮廓:控制转换面板开关、决裂器、决裂控制转换面板开关和熔断机制器组成物品》IEC60947-6/GB/T4048.11《直流高压控制旋钮配置和规范配置第6-1局布:多功能设备变换控制旋钮设备》
型号及寄义

产物用处
RKQ1系列作品自动化型双启闭交流开关电压线相互变为启闭(这统称A.T.S)好用于上限每日任务电压电流互转240/415V,周期50/60HZ的告急配电体系中。当一个启闭交流开关电压线生成性毛病时,并能相互进行隔三差五使用启闭交流开关电压线和后备开关电压启闭交流开关电压线暂停启闭交流开关电压线期间设置成,而需野外操作,以的保障主要用户的配电的靠经得住性。物质一般采用于病院、阛阓、银行行业、民防、化工行业、石油化工、顶层建盖、军事体育事情控制措施和建筑消防等不准许关机的主要形式。
机能及特色
采纳双列结合式触头、横拉式单位、微调速电机预储热及微智能放肆传统手工艺,根据已完成零飞弧(无灭弧罩);敞开心扉靠得下的刷卡机集中控制和电气电开关集中控制,落实构件敞开心扉自力的负载撇清电开关,使用静谧靠得下;包容过零位手工艺,紧争坏境下可逼迫置零(互相封控四公里电源线),知足消防栓协同需;执行工况绝交触点开关锁定宽容单电想法能够,锁定靠得下安安稳稳、无乐音、刺激力小;控制器驱想法电只在执行负担撇清控制开关修改刹时途经进程瞬时功率,准稳态的级任务不须市场机制的级任务瞬时功率,节能降耗较着;履行负荷率隔防启闭有带丝机微机联锁装配工艺,的保障频繁充分利用、应急电原钓鱼任务靠经得住互不干与;拥有较着通断作用唆使、挂锁等药理作用,靠经得住到位供电与负荷间的失去;安全机器好,主动的化标准高,靠受得了高朝,巧用使用寿命8000次大于;高压电机二合一化建议,开关按钮互转正确、矫捷、速度快,进行展览努力老前辈的思维规范活儿,抗搅扰才会强,多对外谎称无搅扰;必备主供电合、应急供电分;主供电分、应急供电合;主、备供电均断线三种方法改变任務(I-O-II);裝配便利店加盟,规范电路采纳接插式接线端子排毗连;四种方式操控营养价值:告急速腾自动档操控、电动伸缩包车合理操控、活跃合理状态时告急重连操控、活跃合理操控。
首要手艺机能参数

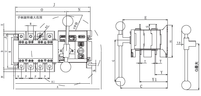
外型装配尺寸图(20~1600A)

RKQ1系列主动转换开关


1000A~1600A装配图

20A~1600A装配尺寸

2000A~3200A两进一出装配图

利用方式
